105 m2
Caratteristiche principali
Altre caratteristiche e accessori
In Via Ruggero Leoncavallo, a pochi passi da Viale Somalia e dal parco di Villa Ada, proponiamo in vendita un luminoso appartamento situato al secondo piano di un elegante contesto residenziale, tranquillo e riservato.
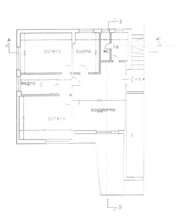
L’immobile si distingue per l’ottima distribuzione degli spazi interni e per la piacevole luminosità che caratterizza ogni ambiente. La proprietà è composta da un comodo ingresso, un ampio soggiorno accogliente e ben illuminato, una cucina abitabile, due spaziose camere matrimoniali, una cameretta, doppi servizi entrambi finestrati e un terrazzo vivibile, ideale per momenti di relax o convivialità all’aperto. Completa la proprietà una comoda soffitta.
La posizione rappresenta uno dei principali punti di forza dell’immobile: il quartiere, tra i più richiesti della zona nord di Roma, offre tutti i servizi essenziali, attività commerciali, scuole e ottimi collegamenti con il resto della città, oltre alla vicinanza di importanti aree verdi perfette per il tempo libero e lo sport.
Possibilità di box auto.
Planimetrie

VIA RUGGERO LEONCAVALLO , Roma (RM)